-
Esconder informacionMostrar informacionEscuela
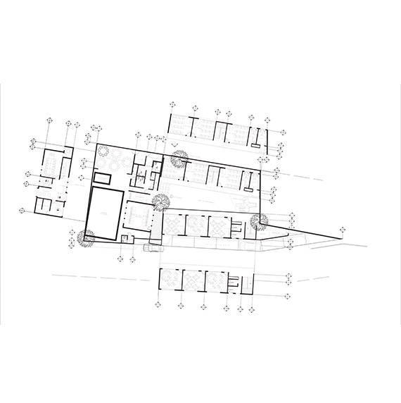
Nacajuca- Cliente: Particular
- Fecha: 2017-ACTUAL
- Tipo de proyecto: Educación
- Descripcion: En este proyecto se busca integrar los elementos para el desarrollo de la infancia que ahí estudiara, con salones para primaria y kínder, son dos edificios de dos niveles, de un lado para el kínder y el otro para la primeria, tiene, salón de usos múltiples, área de huerto, juegos, plaza cívica, alberca, así como el área administrativa y cooperativa. El reto es adaptarnos a un terreno de lados desiguales, logrando cumplir con áreas solicitadas por la SEP, y reglamentos de construcción local. El concepto del proyecto fue adaptarnos al entono, y se diseña a partir de este elemento (un árbol), respetando así su espacio y mejor sumarnos antes de pensar eliminarlo. Los colores a ocupar es el blanco para dar amplitud a los espacios, con remates de colores primarios, que son los primeros que reconoce un niño.



