-
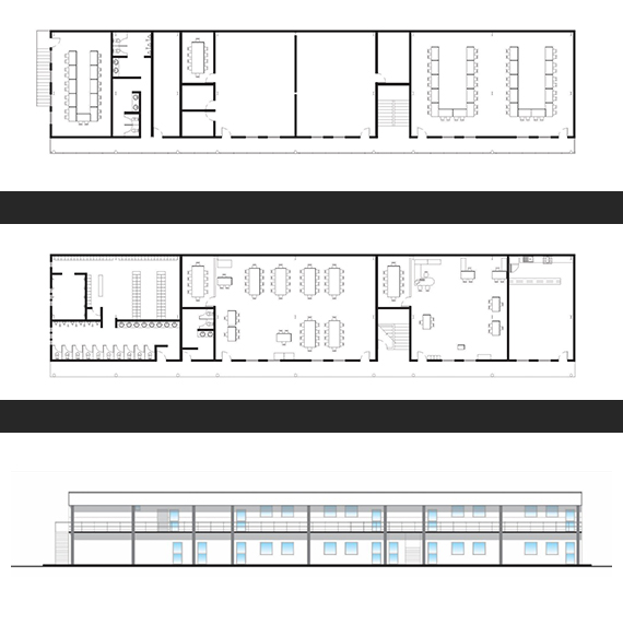
Esconder informacionMostrar informacionCedis
Pepsi- Cliente: NQ Construcciones
- Fecha: 2013
- Tipo de proyecto: Industrial
- Descripcion: Los proyectos donde interactúan varios espacios con usos diferentes pueden ser los más interesantes a desarrollar, porque al estar desarrollando el proyecto debemos imaginar las diferentes sensaciones que tiene un usuario que deberá identificar de forma precisa la identidad de cada edificio. En un terreno de 17,400 m2, se desarrollaron 4 inmuebles independientes, la recepción, el edificio de oficinas en dos niveles, una nave principal para almacenamiento de 4,000 m2, y otra nave para talleres, bodegas. En los exteriores debemos poner mucha atención en representar muy bien la logística de todo un proceso, ya que sin ello podemos caer que, en vez de ayudar al cliente en su producción, podemos heredarle problemas.


