-
Esconder informacionMostrar informacionResidencia
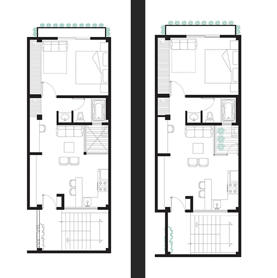
para internistas- Cliente: DRA. MARIA DE LA LUZ REYES
- Fecha: 2003
- Tipo de proyecto: habitacional
- Descripcion: En este proyecto lo difícil fue darle identidad a un espacio ya con un 80% avanzado, donde solo se había pensado en que se necesitaban 2 departamentos para alumnos internistas, al momento de iniciar el diseño se buco dar solución a las necesidades principales para un alumno, que fue dormir cómodo, tener un espacio practico para alimentos y un espacio para la convivencia, y surgió una recamara con el espacio suficiente para una cama matrimonial y un sofá cama, una cocineta donde pueda tener lo necesario para sus alimentos, y una pequeña estancia que pueda compartir con amigo en horas de estudio, con suficiente iluminación gracias al cubo de luz al centro de la estancia. El estilo es moderno, con elementos necesarios para que sea confortable y cálido.


